ULLSWATER SAILING CLUB

Competition (shortlisted)
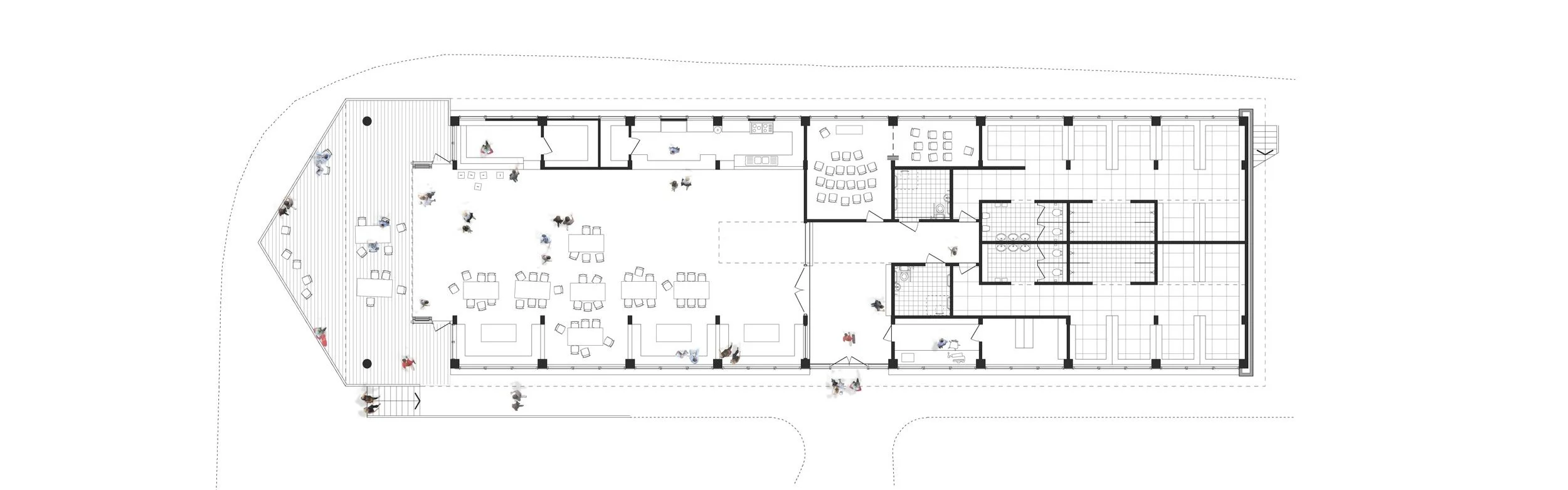
A new clubhouse for Ullswater Yacht Club

Strategy:

  • Proposals were sought for a new clubhouse following extensive damage to the existing building during the 2010 floods.

  • The proposal locates the building on high ground to reduce the risk of reocurrence.

  • The simple barn-like form responds to typical farm structures in the area; use of local, natural materials ensures the building sits comfortably in the rural context.

  • The structural approach, with repetitive timber structural frame, is kept simple to provide best value for the required area.

  • Generous roof overhangs ensure the extensive glazing is adequately shaded to minimise solar gain.

  • During warmer weather the main social area can open to the external deck providing a covered spectator area with views across the beautiful lake and beyond.

The submission was praised by the judges for the well resolved internal layout.

Previous
Previous

TOWNSCLIFFE

Next
Next

BUTTERMERE